• Photo 3
  • Photo 4
  • Photo 5
  • Photo 6
  • Photo 2
  • Photo 1

Scroll Down

To Rent High Street, St Mary's Cray, Orpington, BR5 £18,500 pa

Office  To Rent £18,500 pa

High Street, St Mary's Cray, Orpington, BR5

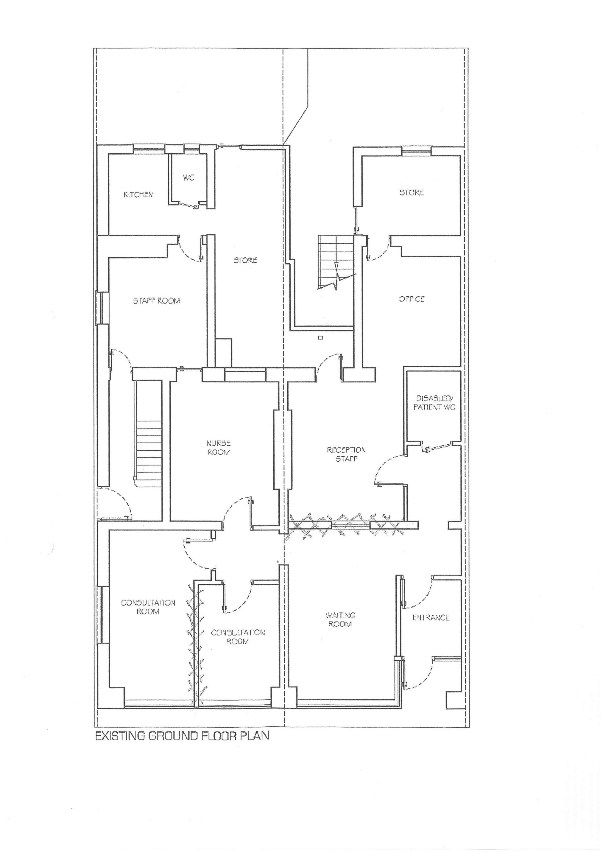
2 ground floor shops used as offices

Numerous and varies sized offices

Reception room

kitchen

Toilet facillities

2-3 parking spaces

Good condition

just over 200sm

Available from April

Council Tax , Bromley

2 Ground floor shops which have been interconnected offering a serios of rooms currently used as offices. The are numerous size rooms which you can view on the floor plan. There is also a kitchenette and toilet facilities and ample storage. There are some parking spaces to the rear of the property. The property has 3 phase electricity and is heated. The pproperty is in good condition on a new lease to be negotiated and agreed upon with interested parties.

Location

Floor Plan

Floor Plan 1

Arrange a Viewing

Arrange a Viewing

IMPORTANT NOTICE FROM KENTON PROPERTY SERVICES LTD

Descriptions of the property are subjective and are used in good faith as an opinion and NOT as a statement of fact. Please make further specific enquires to ensure that our descriptions are likely to match any expectations you may have of the property. We have not tested any services, systems or appliances at this property. We strongly recommend that all the information we provide be verified by you on inspection, and by your Surveyor and Conveyancer.

Fees

Refundable Holding Deposit:

1 Week The deposit will not be returned if the tenant fails a right to rent check,if false or deceptive information is provided so that the property is not able to be let to the tenant or if the tenant withdraws from the agreement.

Security Deposit: 5 Weeks
Rent:As agreed with landlord
Changes to Tenancy:£50.00 Inc VAT(or reasonable costs if these are higher)
Early termination charge:According to costs incurred and re-letting of the property.
Late payment of rent:14 Days or more overdue, fees not to exceed 3% above Bank of England base rate
Replacement keys:  Cost price
Utilities,council tax:
Tenants responsibility
Communication services,TV Licence ETC:Tenants responsibility
Client Money Protection Scheme:Client Money Protect  - Membership No. CMP003749
Property Redress Scheme:Property Ombudsman - Membership No. D10489